マリリン8.11 - 210【3/31退去予定】
最終更新:2026/03/09
※入居可能日:2026/04/21~(現在入居中の為、前後する可能性がございます。)
物件概要
- 住所
- 内灘町ハマナス2丁目55
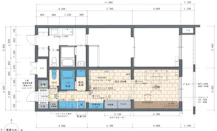
- 間取り
- 2K
- 月額家賃
- 81,000円
- 敷金
- 0ヶ月 (保証会社利用必須)
- 礼金
- 2ヶ月
- 月額駐車料
- 5,500円(税込)
- 築年数
- 1996
- 月額火災保険料
- 700円
- 保証委託料
- 初回保証委託料:賃料等総額の0.5ヶ月分(ただし学生の方は1万円)、月額保証料:賃料等総額の1.2%分(ただし学生の方は賃料総額等の1.0%)

